Bodenbelag innen
Planung
Bodenbeläge im Innenbereich
(nicht Systemböden) Materialwahl:
Für den Innenbereich als Bodenbelag eignen sich sehr viele Materialien.Fragen Sie nach der Materialwahl Ihren Händler oder Planer, ob das Material mit seiner Oberfläche und seinen spezifischen Eigenschaften für die vorgesehene Nutzung, dem vorgesehenem Untergrund und der vorgesehenen Verlegung geeignet ist.
Formate:
Die Formate für Bodenbeläge reichen von Mosaikfliesen auf Gewebe bis zur großformatigen Bodenplatte. Immer häufiger werden großformatige Bodenplatten gewünscht. Diese sind als Natursteine, oder auch als keramische Fliesen erhältlich.
Fugen:
Die Anordnung, Farbe und Größe der Fugen sind gestalterisch von Bedeutung. Oftmals sind technische Forderungen für die Lage und Größe von Fugen zwingend.
Einfluss auf das Fugenbild haben auch die Plattenformate.Wir unterscheiden
a. Mineralisch geschlossene Fugen,
b. Mittels Kunststoff geschlossene Fugen,
c. offene Fugen
d. elastisch geschlossene Fugen und
e. Fugen mit Fugenprofil
Bewegungsfugen sind z.B.
- Anschlussfugen,
- Feldfugen,
- Gebäudetrennfugen,
- Fugen an Revisionsöffnungen
Toleranzen:
Toleranzen sind die Abweichungen zum Absoluten.
Baukörper und Bauteile haben Toleranzen. Die zugelassenen Toleranzen sind in der Din 18202 aufgeführt, oder in den zu dem Gewerk oder Material gehörigen DIN-Normen.
Toleranzen entstehen bei der Fertigung und der Montage. Zudem haben Materialien Ausdehnungen die berücksichtigt werden müssen.
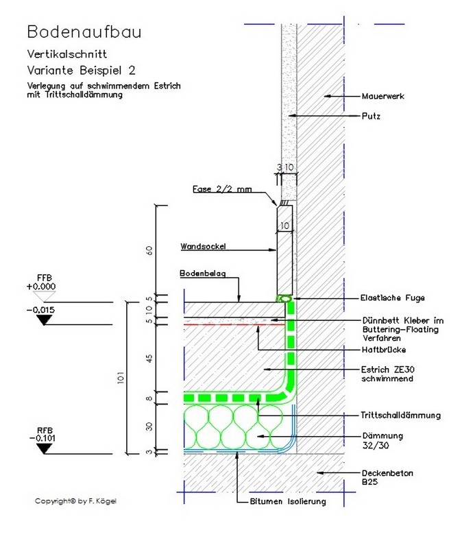
Verlegung
- im Verbund (zum Untergrund)
- auf schwimmendem Estrich
- im Dickbett
- im Mittelbett
- im Dünnbett (Untergrund mit erhöhten Anforderungen, Belagsstärke kalibriert)
- mit Fußbodenheizung
- im Nassbereich
Lotrechte Nutzlasten auf Decken
Die Bodenkonstruktionen müssen den geforderten Nutzlasten standhalten.
1,0 N Flächenlast, 1,0 N Einzellast für Wohn- und Aufenthaltsträum
2,0 N Flächenlast, 2,0 N Einzellast für Büroflächen
3,0 N Flächenlast, 3,0 N Einzellast für Arbeitsflächen
Untergrund - Estricharten:
a. Calciumsulfat Estrich, frühere Bezeichnung war Anhydrit Estrich
-Schnelle Verlegereife
-Biegsamkeit
b. Zementestrich
Beim anmachen wird Estrichsand 0-4, bei dickerem Estrich auch 0-8 oder 0-16 mm Körnung mit Zement im Verhältnis ca. 1:4 und mit Wasser vermengt.
Beim Trocknen verliert die Estrich Masse Anmachwasser und zieht sich zusammen. Die Estrich Feldgröße sollte 40 m² nicht überschreiten. Die Seitenverhältnisse sind dabei zu beachten.
Zementestrich ist auch für Nassbereiche geeignet.
Vor dem Belegen des Estrichs muss die zulässige Restfeuchte erreicht sein.
c. Gussasphaltestrich
-Verlegereife nach Abkühlung
-Bestandteile sind Bitumen, Splitt, Sand, Gesteinsmehl
d. Magnesiaestrich
Magnesiaestrich besteht im Wesentlichen aus Magnesiumchlorit und organischen Stoffen wie Sägemehl, Papiermehl, Korkmehl, u.a. und mineralischen Anteilen wie Quarzsand und Bims Mehl.
Magnesiaestrich ist
- elektrisch leitfähig, daher geeignet bei antistatischen Anforderungen
- sehr feuchteempfindlich, daher nicht empfehlenswert in Nassräumen
- er hat gute Werte zur Wärmedämmung und Schallisolierung
e. Kunstharzestrich
Kunstharzestrich wird in hoch beanspruchten und belasteten Bereichen eingesetzt.
Häufig wird dem Estrich Epoxidharz beigemischt.
Kunstharzestrich Bestandteile sind im Wesentlichen Harze wie Epoxidharz oder Polyurethane, Füllstoffe und Pigmente.
f. Estriche mit Fußbodenheizung
Fußbodenheizungen können auf, in, im unteren Estrichbereich, oder unter dem Estrich sein.
Umso näher die Fußbodenheizung am Oberbelag liegt, und umso effektiver die Wärmedämmung unterhalb der Fußbodenheizung ist, umso weniger Wärmeverlust ist zu verzeichnen.
Die Mindestestrichdicke nach DIN wird ab Oberkante der Heizrohre gemessen.
Reinigung und Pflege:
Die Nutzung der Bodenbeläge bedingt einen natürlichen Verschleiß.
Durch fachgerechte Reinigung und Pflege kann der Verschleiß gemindert, und somit die Schönheit und der Werterhalt gefördert werden.
Nur für das Material geeignete Pflege und Reinigungsprodukte benutzen.
Die Herstellerangaben wie Pflege und Reinigungsanweisungen müssen beachtet werden.
Hinweis auf Normen und Merkblätter:
DIN 18 332 Naturwerksteinarbeiten
DIN 18 333 Betonwerksteinarbeiten
DIN 18 195 Abdichtungen
DIN 18 202 Toleranzen im Hochbau
DIN 18560 Estriche im Bauwesen
DIN EN 18313 Estrichmörtel, Estrichmassen
DIN 4109 Schallschutz im Hochbau
DIN EWN 1991 Eigengewicht und Nutzlasten im Hochbau
BGR 181 Fußböden in Arbeitsräumen...
BIV Merkblatt 1.01
ZDNW Merkblatt 1.01
ZDNW Merkblatt 1.02
ZDNW Merkblatt 1.03
ZDNW Merkblatt 1.11
Die gegebenen Angaben sind nicht vollständig und dienen nur zur Orientierung.



